
HDタイプ欧州揚重電気単桁オーバーヘッドクレーン
ヨーロッパのシングルガーダーオーバーヘッドクレーンは、高度な技術と美しいデザインのFEMとDIN規格に厳密に従った設計と製造を行うコンパクトなリフティング機械です。 一般的なタイプとサスペンションタイプに分かれて、ヨーロッパ標準の電気ホイストの使用をサポートし、ワークショップや倉庫の材料の取り扱い、大規模な部品精度アセンブリなどに適しています。
HDタイプ欧州揚重電気単桁オーバーヘッドクレーン
簡単な説明:
ヨーロッパのシングルガーダーオーバーヘッドクレーンは、高度な技術と美しいデザインのFEMとDIN規格に厳密に従った設計と製造を行うコンパクトなリフティング機械です。 一般的なタイプとサスペンションタイプに分かれて、ヨーロッパ標準の電気ホイストの使用をサポートし、ワークショップや倉庫の材料の取り扱い、大規模な部品精度アセンブリなどに適しています。

それは広く機械製造、冶金、石油、石油精製、港湾、鉄道、民間航空、食品、製紙、建設、エレクトロニクス産業のワークショップ、倉庫、 正確な位置決めが必要な材料ハンドリングに適用され、大きなコンポーネントは正確なアセンブリ状況になります。

詳細画像:

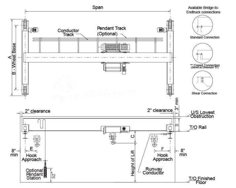
スケッチ描画:

技術的パラメータ:
スパン | m | 7.5 | 10.5 | 13.5 | 16.5 | 19.5 | 22.5 | 25.5 |
容量 | t | 1〜12.5t | ||||||
総重量 | kg | 1781〜12086 | ||||||
トロリーの重量 | kg | 405〜740 | ||||||
マックス ホイールロード | kn | 13.5〜90.94 | ||||||
トラベルレール | P24〜P43 | |||||||
持ち上げ速度 | m /分 | 0.8 / 5 | 0.8 / 5 | 0.8 / 5 | 0.8 / 5 | 0.8 / 5 | 0.8 / 5 | 0.8 / 5 |
持ち上げ高さ | m | ≥6 | ≥6 | ≥6 | ≥6 | ≥6 | ≥6 | ≥6 |
総モーターパワー | kw | 4.31 | 4.31 | 4.31 | 4.31 | 4.67 | 4.67 | 4.67 |
クレーン速度 | m /分 | 3-30 | 3-30 | 3-30 | 3-30 | 3-30 | 3-30 | 3-30 |
トロリー速度 | m /分 | 2-20 | 2-20 | 2-20 | 2-20 | 2-20 | 2-20 | 2-20 |
勤務 | M5 / A5 | |||||||


English
українська
Ar hñä ar Keleitaluoaotuomi
Български
Eesti
عربي
Malti
हिंदी
Cymraeg
русский
türkiye
Nederlands





